Partnerzy serwisu:
Komunikacja

Olsztyn wybrał tramwaje od firmy Saatz

Dalej Wstecz
Partner działu

Sultof

Data publikacji:
25-09-2024
Ostatnia modyfikacja:
25-09-2024
Tagi geolokalizacji:

Podziel się ze znajomymi:

KOMUNIKACJA
Olsztyn wybrał tramwaje od firmy Saatz
rys. SAATZ
Olsztyn rozstrzygnął przetarg na dostawę sześciu niskopodłogowych tramwajów. Krótką serię pojazdów ma dostarczyć do stolicy Warmii i Mazur firma Saatz.

Olsztyn rozstrzygnął przetarg na dostarczenie sześciu niskopodłogowych i wieloczłonowych tramwajów wraz z przeniesieniem na zamawiającego praw własności. Pojazdy mają być ponadto objęte serwisem gwarancyjnym, a producent ma także dostarczyć specjalistyczny osprzęt i pakiet narzędzi do utrzymania wozów. W przetargu zawarto również prawo opcji na maksymalnie osiem tramwajów.

Do przetargu nie przystąpił żaden znany producent taboru tramwajowego, a jedynie firmy, które zajmowały się dotychczas naprawą i utrzymaniem pojazdów szynowych. Umożliwiały to bardzo liberalne warunki udziału w zamówieniu, jakie przyjął Olsztyn. Firma SAATZ zaoferowała dostarczenie sześciu tramwajów za 110,69 mln zł przy budżecie zamawiającego wynoszącym dokładnie 110,7 mln zł. I to właśnie oferta tej firmy została uznana za najkorzystniejszą.

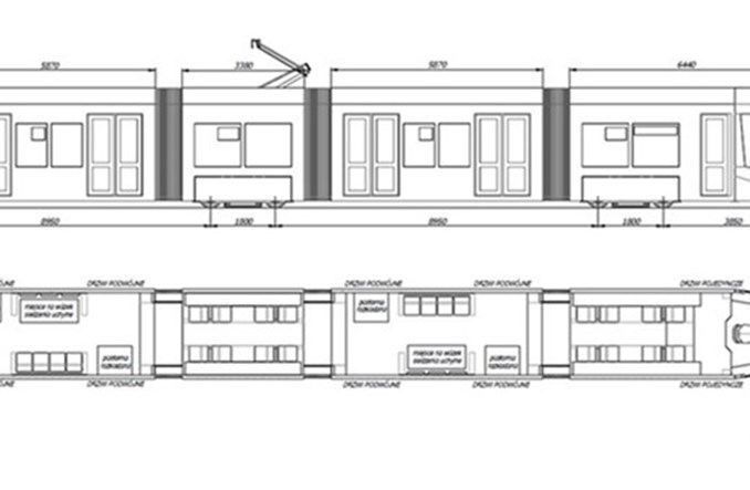
W tramwajach niska podłoga ma zajmować co najmniej 70 procent powierzchni i znajdować się na 37 mm nad główką szyny lub na 48 mm przy zastosowaniu wózków skrętnych. Długość tramwajów została ustalona między 29 a 33 metry. Liczba członów będzie rozwiązaniem przyjętym przez wykonawcę. Szerokość pudła tramwaju określono na 2,5 metra. Zamawiający dopuszcza nieznaczne (maksymalnie 20 mm) zwężenie pudła przy dolnej linii okien po uzasadnieniu przez producenta. Tuż za kabinami motorniczych mają zostać wytyczone miejsca dla osób na wózkach. Pojemność pojazdów wskazano na co najmniej 200 pasażerów przy założeniu napełnienia 5 osób/m2 powierzchni podłogi. Liczba miejsc siedzących musi stanowić minimum 15 proc. wszystkich miejsc. W ustawieniu siedzeń producent ma dążyć do zapewnienia jak najmniejszego ograniczenia szerokości przejścia. Wymagane jest, aby siedzenia ustawione były wzdłużnie i poprzecznie do kierunku jazdy. Dopuszczono ewentualny montaż siedzeń rozkładanych.

Firma Saatz deklaruje tramwaj o mniejszym nacisku na oś – 94,9 kN. Udział niskiej podłogi zadeklarowano na poziomie 71 proc. Szerokość przejścia w przedziale pasażerskim ma wynosić 800 mm, zaś w przejściu nad wózkami 640 mm. W pojeździe ma się znaleźć 36 miejsc siedzących oraz 6 rozkładanych. Pojemność tramwaju określono na 210 miejsc. Oferent także jest skłonny wydłużyć rękojmię na tramwaje o dwa lata. Firma dołączyła schemat zaproponowanego modelu tramwaju, który nazwała ST1.
Partner działu

Sultof

Tagi geolokalizacji:

Podziel się z innymi:

Pozostałe z wątku:

Rumunia: Ploeszti kupuje 20 nowych tramwajów

Komunikacja

Rumunia: Ploeszti kupuje 20 nowych tramwajów

Przemysław Farsewicz 10 sierpnia 2025

Rumunia: Jassy prezentują nowe tramwaje od firmy Bozankaya

Przestrzeń

Tramwaje Škody pojadą do Moguncji

Przestrzeń

Tramwaje Škody pojadą do Moguncji

Przemysław Farsewicz 25 maja 2025

Zobacz również:

Olsztyn rezygnuje z ok. 100 mln zł unijnych środków na transport

Prawo & Finanse

Olsztyn rezygnuje z ok. 100 mln zł unijnych środków na transport

Przemysław Farsewicz 28 lipca 2025

Olsztyn. Rozwój tramwaju w próżni

Komunikacja

Olsztyn. Rozwój tramwaju w próżni

Jakub Rösler 19 maja 2025

Zbliża się naprawa główna olsztyńskich Solarisów Tramino

Komunikacja

Pozostałe z wątku:

Rumunia: Ploeszti kupuje 20 nowych tramwajów

Komunikacja

Rumunia: Ploeszti kupuje 20 nowych tramwajów

Przemysław Farsewicz 10 sierpnia 2025

Rumunia: Jassy prezentują nowe tramwaje od firmy Bozankaya

Przestrzeń

Tramwaje Škody pojadą do Moguncji

Przestrzeń

Tramwaje Škody pojadą do Moguncji

Przemysław Farsewicz 25 maja 2025

Zobacz również:

Olsztyn rezygnuje z ok. 100 mln zł unijnych środków na transport

Prawo & Finanse

Olsztyn rezygnuje z ok. 100 mln zł unijnych środków na transport

Przemysław Farsewicz 28 lipca 2025

Olsztyn. Rozwój tramwaju w próżni

Komunikacja

Olsztyn. Rozwój tramwaju w próżni

Jakub Rösler 19 maja 2025

Zbliża się naprawa główna olsztyńskich Solarisów Tramino

Komunikacja

Kongresy
SZKOLENIE ON-LINE
Śledź nasze wiadomości:
Zapisz się do newslettera:
Podanie adresu e-mail oraz wciśnięcie ‘OK’ jest równoznaczne z wyrażeniem zgody na:
  • przesyłanie przez Zespół Doradców Gospodarczych TOR sp. z o. o. z siedzibą w Warszawie, adres: Sielecka 35, 00-738 Warszawa na podany adres e-mail newsletterów zawierających informacje branżowe, marketingowe oraz handlowe.
  • przesyłanie przez Zespół Doradców Gospodarczych TOR sp. z o. o. z siedzibą w Warszawie, adres: Sielecka 35, 00-738 Warszawa (dalej: TOR), na podany adres e-mail informacji handlowych pochodzących od innych niż TOR podmiotów.
Podanie adresu email oraz wyrażenie zgody jest całkowicie dobrowolne. Podającemu przysługuje prawo do wglądu w swoje dane osobowe przetwarzane przez Zespół Doradców Gospodarczych TOR sp. z o. o. z siedzibą w Warszawie, adres: Sielecka 35, 00-738 Warszawa oraz ich poprawiania.
Współpraca:
Rynek Kolejowy
Rynek Lotniczy
Rynek Infrastruktury
TOR Konferencje
ZDG TOR
ZDG TOR
© ZDG TOR Sp. z o.o. | Powered by BM5
Zamknij